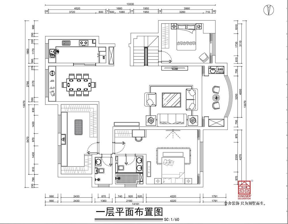
樓盤:國賓壹號
面積:287平米
設計風格:新中式風格
設計師:胡岳磊
戶型為兩層躍層,


【一層】
空間戶型方正,全明戶型,居室布局合理,動靜分離。
完美四居室,聚合家人幸福情懷,勾勒全家幸福畫卷;
餐廳挑空,家人優(yōu)雅齊聚共飲,盡展幸福寫意人生;
盛納陽光露臺,蔓延幸??臻g,為室內體驗添加細膩層次和豐富美感。
【二層】
豪華戶型布局,靜謐私居典范,春華秋實,靜攬四季人生;優(yōu)雅主臥配備衣帽間、陽光房、洗漱間、健身房,實現奢華之上的實用主義;超越想象的層高距離,寬敞的天臺一覽絕美的高出風景。